ΕΓΓΡΑΨΟΥ
για να λαμβάνεις τα νέα του Archetype στο email σου!
Thank you!
You have successfully joined our subscriber list.
Φοιτητής: Κακούλης Ιωάννης
Επιβλέπων Καθηγητής: Κωτσόπουλος Σοφοκλής
Δ.Π.Μ.Σ.: Προ.Συν.Απο., Α.Π.Θ.
Ημερομηνία Παρουσίασης: 09.07.2025
Η Βέροια χαρακτηριζόταν ανέκαθεν από έναν μεγάλο αριθμό σωζόμενων ναών, πολύτιμων και ανεκτίμητων τεκμηρίων πολιτισμικής κληρονομιάς. Ένα από αυτά είναι ο ναός της Παναγίας Γοργοεπηκόου. Πρόκειται για έναν ναό με μεγάλη διάρκεια στον χρόνο και με ανεκτίμητης αξίας αρχιτεκτονικά και καλλιτεχνικά στοιχεία, ένα ζωντανό παράδειγμα της ιστορίας της Βέροιας και της βυζαντινής κληρονομιάς.

Ο ναός της Γοργοεπηκόου εντοπίζεται στον πυρήνα μιας τυπικής χριστιανικής συνοικίας, της Κυριώτισσας (περ. 15ος αιώνας), που κατοικούνταν από Έλληνες και η οποία διατηρεί, μέχρι και σήμερα, πολλά χαρακτηριστικά αναλλοίωτα. Επιπλέον, αποτελεί ένα από τα πολλά παραδείγματα ναών της Βέροιας, όπου οι ποικίλες επεμβάσεις και ριζικές τροποποιήσεις άλλαξαν ολοσδιόλου τον αρχικό τύπο και τη μορφή του ναού. Όπως και άλλοι ναοί, η Παναγία Γοργοεπήκοος αποτελεί έξοχο παράδειγμα της μετάβασης απ’ τον αρχικό τύπο του μονόχωρου ναού σε αυτόν της τρίκλιτης βασιλικής.



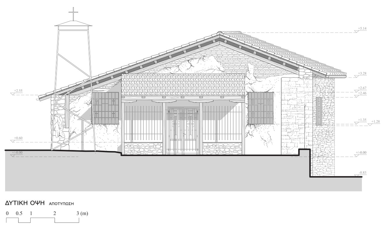
Στο πλαίσιο εκπόνησης της εργασίας, πραγματοποιήθηκε σε πρώτη φάση η ανάλυση και τεκμηρίωση του μνημείου. Διερευνήθηκε η σχέση του μνημείου με την ευρύτερη περιοχή που το περιβάλλει, τόσο σε διαχρονικό όσο και σε συγχρονικό πλαίσιο. Έπειτα, πραγματοποιήθηκε η ιστορική ανάλυση και η σκιαγράφηση των οικοδομικών φάσεων. Μεγάλη έμφαση δόθηκε στη διαδικασία της αρχιτεκτονικής ανάλυσης, η οποία περιελάμβανε μεταξύ άλλων τη λεπτομερή αποτύπωση του μνημείου.
Σε συνέχεια του πρώτου μέρους της ανάλυσης και τεκμηρίωσης, διαμορφώθηκε η πρόταση αποκατάστασης και ανάδειξης του μνημείου, αλλά και επανασχεδιασμού του αύλειου χώρου.

Οι επεμβάσεις αποκατάστασης του ναού που προτείνονται στην εργασία, θέτουν ως στόχο την αισθητική και λειτουργική αναβάθμιση, μεριμνώντας παράλληλα για τη διαφύλαξη και ανάδειξη των ιστορικών τεκμηρίων. Ωστόσο, αξίζει να σημειωθεί πως δεν έχουν πραγματοποιηθεί, μέχρι στιγμής, ανασκαφικές έρευνες για τη διερεύνηση των θεμελίων του ναού. Πρόκειται για ένα στάδιο αναμφισβήτητης αξίας και προτεραιότητας, σε ότι αφορά την τεκμηρίωση του εκάστοτε μνημείου. Ως εκ τούτου, όσες επεμβάσεις προτείνονται, εμπεριέχουν το ενδεχόμενο ενός μελλοντικού επαναπροσδιορισμού, εφόσον προκύψουν νέα, καθοριστικής σημασίας, δεδομένα.



Όλες οι επεμβάσεις του αύλειου χώρου σχεδιάστηκαν στη βάση του σκεπτικού ότι κάθε μνημείο ορίζεται σύμφωνα με το άμεσο ή έμμεσο τοπίο που το περιβάλλει. Έτσι, υπήρξε μέριμνα ώστε ο νέος σχεδιασμός να έχει μια εναρμονισμένη γενική αισθητική και να μην προσβάλει το μνημείο και τον γύρω ιστορικό του χώρο. Συγχρόνως, στάθηκε απαραίτητη η διαφοροποίηση και διάκριση των νέων στοιχείων από τα υφιστάμενα, ιστορικά μέρη του ναού.
Πιο συγκεκριμένα, ο αύλειος χώρος ανασχεδιάστηκε με τέτοιο τρόπο, ώστε να αποκτήσει μια νέα φιλόξενη μορφή, προσβάσιμη από όλες τις ηλικίες. Ιδιαίτερη έμφαση δόθηκε στην ενίσχυση του πρασίνου και την οργάνωση των καθιστικών, υπαίθριων χώρων. Βασικός άξονας των επεμβάσεων στάθηκε η ανάγκη δημιουργίας νέων χαράξεων με τέτοιο τρόπο ώστε να κατευθύνουν τον επισκέπτη και να τον έλκουν είτε προς το εσωτερικό του ναού, είτε προς τον αύλειο χώρο της δυτικής και βόρειας πλευράς του οικοπέδου.




Συνοψίζοντας, το γεγονός ότι η ιστορική συνοικία στην οποία εντοπίζεται ο ναός, διατηρεί πολλά χαρακτηριστικά αναλλοίωτα, συνέβαλε θετικά στην πρόταση ανάδειξης του μνημείου, σε αντίθεση με άλλα μνημεία τα οποία περιβάλλονται από ένα άχαρο, αστικό τοπίο. Η πρόταση για την αποκατάσταση και ανάδειξή του ναού, που περιγράφεται σ’ αυτή την εργασία, έχει ως κύριο μέλημα τον σεβασμό της ιστορικής φυσιογνωμίας τόσο του μνημείου όσο και της ευρύτερης περιοχής στην οποία αυτό εντάσσεται.
Restoration and Enhancement of the Church of Panagia Gorgoepikoos in Veria
Veria has always been characterized by a large number of preserved churches, priceless evidence of cultural heritage. One of these is the church of Panagia Gorgoepikoos. It is a church with a long history and valuable architectural and artistic elements, a living example of the history of Veria and its Byzantine heritage.
The church of Gorgoepikoos is located in the heart of a typical Christian neighborhood, Kyriotissa (c. 15th century), which was inhabited by Greeks and which, to this day, retains many of its original characteristics. Furthermore, it is one of many examples of churches in Veria where various interventions and radical modifications have completely changed the original type and form of the church. Like other churches, Gorgoepikoos is an excellent example of the transition from the original type of single-aisled church to that of a three-aisled basilica.
As part of the project, the first phase involved analyzing and documenting the monument. The relationship between the monument and the wider surrounding area was investigated, both in a diachronic and synchronic context. This was followed by a historical analysis and outline of the construction phases. Great emphasis was placed on the architectural analysis process, which included, among other things, a detailed survey of the monument.
Following the first part of the analysis and documentation, a proposal was formulated for the restoration and enhancement of the monument, as well as the redesign of the courtyard.
The restoration work proposed in the study aims to improve the aesthetics and functionality of the church, while also preserving and highlighting its historical features. However, it should be noted that no excavations have been carried out to date to investigate the foundations of the church. This is a stage of unquestionable value and priority in terms of documenting the monument in question. Therefore, any interventions that are proposed may be subject to future reevaluation if new, decisive data emerges.
All interventions in the courtyard were designed on the basis that each monument is defined by the immediate or indirect landscape that surrounds it. Thus, care has been taken to ensure that the new design has a harmonious overall aesthetic and does not detract from the monument and its surrounding historic environment. At the same time, it was necessary to differentiate and distinguish the new elements from the existing, historic parts of the church.
More specifically, the courtyard was redesigned to give it a new welcoming look, accessible to all ages. Particular emphasis was placed on enhancing the greenery and organizing the seating areas and outdoor spaces. The main focus of the interventions was the need to create new paths in such a way as to guide visitors and draw them either towards the interior of the church or towards the courtyard on the west and north sides of the plot.
In summary, the fact that the historic neighborhood in which the church is located retains many of its original characteristics, contributed positively to the proposal to highlight the monument, in contrast to other monuments that are surrounded by an unattractive urban landscape. The proposal for the restoration and enhancement of the church, described in this paper, is primarily concerned with respecting the historical character of both the monument and the wider area in which it is located.
Χριστίνα Ιωακειμίδου - 29/04/2026
Περσεφόνη Βλαχούτσικου, Χριστιάνα Παπαδογεώργη - 27/04/2026
Archetype team - 23/04/2026
ΟΛΑ ΤΑ ΤΕΥΧΗ
SUBSCRIBE
Μπορείς να καταχωρήσεις το έργο σου με έναν από τους τρεις παρακάτω τρόπους: