ΕΓΓΡΑΨΟΥ
για να λαμβάνεις τα νέα του Archetype στο email σου!
Thank you!
You have successfully joined our subscriber list.
Φοιτήτρια: Γιώργος Γενοβέζος, Λάμπρος Φαράτζ
Επιβλέπουσα καθηγήτρια: Δήμητρα Κατσώτα
Σχολή: Τμήμα Αρχιτεκτόνων Μηχανικών, Πανεπιστήμιο Πατρών
Εξεταστική περίοδος: Φεβρουάριος 2025
Σήμερα παρατηρούνται ορισμένες κοινωνικές ομάδες που βρίσκονται σε αποκλεισμό. Μια από αυτές είναι η φυλή των Ρομά. Ως αρχικό στόχο τον περιορισμό αυτού του φαινομένου, σκεφτήκαμε πως και η αρχιτεκτονική μπορεί να συμβάλει σε αυτό. Έχοντας μελετήσει τη ζωή τους και τις άσχημες συνθήκες διαβίωσής τους, αποφασίσαμε να προχωρήσουμε σε μια παρέμβαση με γνώμονα τη βελτίωση του βιοτικού επιπέδου τους.

Έναν από τους παλιότερους καταυλισμούς Ρομά της Αττικής αποτελεί αυτός στο Νομισματοκοπείο στο Χαλάνδρι. Παρόλο που ο καταυλισμός βρίσκεται στη συμβολή τριών δήμων, σημειώνεται κοινωνικός αποκλεισμός.

Το site που περιλαμβάνει τον καταυλισμό φαίνεται να αποτελεί ένα μεγάλο αστικό κενό της Αττικής. Με αυτά τα δεδομένα αποφασίσαμε να ασχοληθούμε με τη σχεδίαση ενός πάρκου συνάθροισης των δυο πολιτισμών.

Με το intersection of unity επιδιώκουμε την ενεργοποίηση αυτού του αστικού κενού με τη δημιουργία ενός κοινωνικού, οικονομικού και πολιτιστικού κόμβου, ενισχύοντας παράλληλα το φυσικό στοιχείο πρασίνου. Η κίνηση αυτή αποτελεί
ένα landmark πολιτισμικής ενότητας.

Καταγράψαμε τρεις καταυλισμούς στην Ελλάδα. Οι τοποθεσίες που επιλέξαμε είναι η Νέα Ζωή στον Ασπρόπυργο, το Δροσερό στη δυτική Ξάνθη και το Τέρμα Άβαντος στη δυτική Αλεξανδρούπολη.

Η Νέα Ζωή πρόκειται για έναν καταυλισμό στην περιοχή του Ασπροπύργου με εγκατεστημένους Ρομά από διάφορες χώρες. Εκεί υπάρχουν 2.650 κάτοικοι και 270 οικογένειες. Η εγκατάστασή τους στην περιοχή έγινε πιθανότατα κατά τη δεκαετία του 1980.

Το Δροσερό Ξάνθης έχει πληθυσμό 3.500 κατοίκους. Η εναέρια θέαση του οικισμού εμφανίζει τις δυο επικρατέστερες τυπολογίες στέγασης: μπετονένια δώματα και κεραμοσκεπές. Πολεοδομικά θυμίζει αρκετά επαρχιακή περιοχή της Ελλάδας. Ασχεδίαστα και ακανόνιστα οικοδομικά τετράγωνα στα οποία συγκεντρώνονται από δέκα μέχρι μερικές δεκάδες καλύβες. Σε κάποια σημεία υπάρχουν και αραιώσεις του κτισμένου στις οποίες βρίσκονται δημόσιοι χώροι.

Το Τέρμα Άβαντος βρίσκεται βόρεια της Αλεξανδρούπολης και διασχίζεται από τη Σιδηροδρομική γραμμή Λιμένα Αλεξανδρούπολης-Σβίλενγκραντ και την οδό Αλεξανδρούπολης-Άβαντος. Ο πληθυσμός είναι 6.524 κάτοικοι. Χαρακτηριστικό
του οικισμού είναι η απουσία πολυκατοικιών και η συγκέντρωση πολλών μικρών μονοκατοικιών, δημιουργώντας απευθείας την ατμόσφαιρα ενός χωριού που έχει μείνει πίσω στον χρόνο. Τα κτίσματα είναι κατασκευασμένα από μπετό και οπτοπλινθοδομή.

Αρκετά χρήσιμη ήταν η αποτύπωση της καλύβας της κυρίας Ειρήνης κατά την επίσκεψή μας στον καταυλισμό Νέα Ζωή, στον Ασπρόπυργο, τον Μάιο του 2024.

Η οικία της κυρίας Ειρήνης βρίσκεται στο βορειοδυτικό τμήμα του καταυλισμού Νέα Ζωή στον Ασπρόπυργο. Το σπίτι κατασκευάστηκε πριν μερικές δεκαετίες. Η είσοδος του σπιτιού βρίσκεται στην κύρια Νότια όψη, με πρόσβαση απευθείας από τον χωμάτινο δρόμο της γειτονιάς. Διαθέτει μια τσιμεντένια λωρίδα πλάτους δυο μέτρων μεταξύ του δρόμου και της κατοικίας. Η κατοικία είναι τυπικού μεγέθους και αναπτύσσεται ισόγεια. Διαθέτει δίριχτη σκεπή με τη κορυφή της να βρίσκεται στο 2.70m. Το μοναδικό άνοιγμα του σπιτιού αποτελεί η κυριά είσοδος, μιας και τα κουφώματα της πρόσοψης είναι σταθερά. Η κατασκευή αποτελείται από ξύλινο σκελετό επενδυμένο με διάφορα είδη ξυλείας και μουσαμάδες πάνω σε μπετονένια βάση. Η διαρρύθμιση εσωτερικά πρόκειται για «open-plan». Σύμφωνα με την Έφη Καραθανάση, από πολύ παλιά έχουν συνηθίσει να συμβιώνουν όλοι μαζί οπότε δεν υπάρχει ανάγκη για διαχωρισμούς. Οι χώροι οριοθετούνται από την επίπλωση ή από την εναλλαγή μοτίβων. Οι επιφάνειες των τοίχων είναι βαμμένες λευκές, ενώ είναι ευδιάκριτα τα σημεία ένωσης και αλληλοεπικάλυψής τους. Όλα τα έπιπλα είναι καλυμμένα με σεμεδάκια. Τα σεμεδάκια της όψης λειτουργούν ως φίλτρο φωτός πίσω από τις τζαμαρίες. Η θέρμανση είναι δυνατή μέσω μιας μικρής κυλινδρικής αυτοσχέδιας ξυλόσομπας. Δεν υπάρχει λουτρό παρά μόνο ένα κοινόχρηστο αποχωρητήριο για τη γειτονιά.

Η περιοχή, καθορισμένη από τις οδούς Σαρανταπόρου, Νικολάου Ζερβού, Μεσογείων και Λευκωσίας, πρόκειται για ένα σύμπλεγμα ποικίλων χρήσεων 280.000 τ.μ. στο σημείο επαφής τριών δήμων: Χαλανδρίου, Χολαργού και Αγίας Παρασκευής.
Εκεί βρίσκονται οι εγκαταστάσεις του Νομισματοκοπείου, το προσχολικό κέντρο Αθηνών, προοριζόμενο αρχικά για τις οικογένειες των εργαζομένων της τράπεζας, ο καταυλισμός Ρομά 257 κατοίκων, το κτίριο γραφείων της ΑΡΚΑΤ, ενώ στο μέτωπο προς τη Μεσογείων υπάρχει σταθμός μετρό (διασχίζοντας υπογείως τον καταυλισμό), καθώς και μια παρηκμασμένη εμπορική ζώνη.

Ο καταυλισμός ανάμεσα στο προσχολικό ίδρυμα και στα γραφεία πρόκειται για έναν από τους παλιότερους και μεγαλύτερους καταυλισμούς Ρομά στην Αττική. Η εγκατάσταση των περισσοτέρων οικογενειών εκεί έγινε το 1971 και σε κάποιες
περιπτώσεις ακόμα πιο πριν. Η καταγραφή του υπουργείου το 2021 υπολόγισε τον πληθυσμό στους 257. Φαίνεται να υπάρχει μια στοιχειώδης στοίχιση σε γειτονιές. Οι ιδιοκτησίες χωρίζονται μεταξύ τους με μάντρες από τσιμεντόλιθο του ενός μέτρου. Οι δημόσιοι χώροι είναι ουσιαστικά κάποια ξέφωτα. Στον καταυλισμό, εκτός από τις κατοικίες, βρίσκεται και ένας πολιτιστικός σύλλογος Ρομά. 2 Τοπογραφικά όλη η έκταση είναι ανισόπεδη, μιας και η Σαρανταπόρου βρίσκεται τρία με τέσσερα μέτρα χαμηλότερα από τη Μεσογείων. Αυτές οι υψομετρικές διαφορές αποτέλεσαν πρόκληση κατά τον σχεδιασμό της πρότασης.

Το Climat De France πρόκειται για ένα γαλλικό αποικιακό έργο κοινωνικής κατοίκισης, σχεδιασμένο από τον Fernand Pouillon το 1954 στην Αλγερία. Μας ενδιέφερε πώς με ένα τόσο απλό γεωμετρικό σχήμα όπως αυτό του ορθογωνίου καταφέρνει να οργανώσει μια κοινότητα με πολιτιστικά ποικίλο πληθυσμό. Το στοιχείο της μνημειακότητας μας φάνηκε επίσης ενδιαφέρον.

Στον ναό του Λούξορ στην Αίγυπτο μας ενδιέφερε η χρήση επιστύλιας στοάς για τη σύνδεση δυο αιθρίων. Στη δική μας περίπτωση αξιοποιούμε αυτή τη συνθήκη για τη σύνδεση προγραμμάτων.

Κατά τον σχεδιασμό του αιθρίου μελετήσαμε το Μεγάλο Τζαμί της Ισφαχάν, εστιάζοντας στη χωρική ποιότητα του αιθρίου και του κεντρικού χώρου προσευχής.

Το Intersection of Unity επινοείται ως ένα πάρκο κοινωνικής αλληλεπίδρασης μεταξύ διαφορετικών πολιτισμών, καθώς και ένας πολιτιστικός και οικονομικός κόμβος στο σημείο τομής Χαλανδρίου, Χολαργού και Αγίας Παρασκευής.

Παρατηρώντας την υφιστάμενη κατάσταση, διαπιστώσαμε ότι το κτίριο του νομισματοκοπείου είναι ένα από τα σημαντικότερα στοιχεία της περιοχής μελέτης. Αυτό που το χαρακτηρίζει είναι η μνημειακότητα και η μεγάλη του κλίμακα. Αυτές τις συνθήκες θέλαμε να τις μεταφέρουμε και στη δική μας παρέμβαση, μιας και πιστεύουμε πως η στιγμή αυτή της ένωσης των δυο πολιτισμών αποτελεί κάτι θεμελιώδες. Συγκεκριμένα υιοθετούμε τη μεγάλη κλίμακα και την αυστηρή γεωμετρία
και οργάνωση.

Μέσω των προγραμμάτων που προτείνουμε πιστεύουμε ότι ενισχύουμε την κοινωνική αλληλεπίδραση. Αρχικά το κτίριο κατοίκισης μαζί με το αίθριο δημιουργούν μια κοινότητα από Ρομά και μη Ρομά, συνδυάζοντας την καθημερινή διαβίωση και τη
συνάθροισή τους στον κεντρικό χώρο εστίασης. Το μουσείο, τα καταστήματα, οι κήποι, η πλατεία ενότητας και το αθλητικό συγκρότημα συμβάλλουν και αυτά στην κοινωνικοποίησή τους.

Οι προσβάσεις των πεζών επιτυγχάνονται περιμετρικά από κάθε πλευρά του πάρκου. Η πλευρά προς τη Μεσογείων αποτελεί την κύρια είσοδο μιας και συμπεριλαμβάνει τον σταθμό μετρό. Από την οδό Λευκωσίας υπάρχουν τέσσερις είσοδοι με τη μορφή κεκλιμένων και μη επιπέδων. Τέσσερα σημεία προσφέρουν πρόσβαση από τη Σαρανταπόρου με κυριότερο το σημείο της Πλατείας Ενότητας, η οποία λειτουργεί ως σύνδεσμος της οδού με τη Μεσογείων. Στη Νικολάου Ζερβού υπάρχουν δυο είσοδοι. Εντός του πάρκου οι κυκλοφορίες χωρίζονται σε κύριες και δευτερεύουσες. Κύριες αποτελούν: η κεντρική στοά, συνδέοντας Κτίριο κατοίκισης με καταστήματα, και η διαδρομή επι της Μεσογείων.

Ακόμα στην οδό Σαρανταπόρου βρίσκεται η κύρια είσοδος του κτιρίου κατοίκισης η οποία αποτελεί μια εμβληματικού μεγέθους κλίμακα και υποδηλώνει τη σημαντικότητα της χειρονομίας σχεδιασμού μιας μονολιθικής κατασκευής και της
σχέσης της με τον δρόμο της Σαρανταπόρου, ο οποίος έχει υποδεχτεί στο παρελθόν τελετές και γλέντια των Ρομά.

21. Η πρόσβαση στα υπόγεια παρκινγκ είναι εφικτή μέσω ραμπών από τη Μεσογείων, Λευκωσίας και Σαρανταπόρου με την πρόσβαση των φορτηγών τροφοδοσίας των καταστημάτων να γίνεται ξεχωριστά κάτω από το αθλητικό συγκρότημα.

Η ιδέα της ενότητας μεταφέρεται και στον χώρο, αφού συνδέουμε τους δρόμους με ενιαίες επιφάνειες υπό κλίση. Την έντονη υπάρχουσα τοπογραφία την αντιμετωπίζουμε με την εξομάλυνσή της στο σημείο του πρώην καταυλισμού, διατηρώντας την υψομετρική διαφορά στην περιοχή της κατοίκησης.

Ανατολικά, ως απόληξη του πάρκου της Μεσογείων, δημιουργούμε ένα μέτωπο που αντανακλά το πρόγραμμα και την κατεύθυνση της αντικριστής πλευράς της πόλης, μέσω του γραμμικού κτιρίου γραφείων και καταστημάτων. Δυτικά, επιθυμώντας να αναδείξουμε το πρώην κτίριο Νομισματοκοπείου, σκηνοθετούμε μια διεύρυνση του οπτικού πεδίου προς αυτό.
Η πρόταση αποσκοπεί στο να αποτελέσει ένα ορόσημο που σηματοδοτεί την αρμονική συνύπαρξη των δυο λαών. Μια κίνηση που αντιπροσωπεύει ένα βήμα μπροστά στην εξέλιξη της ανθρωπότητας.

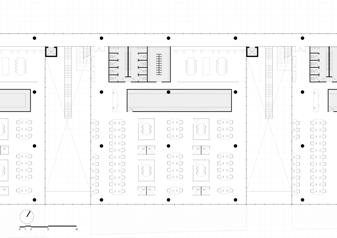
Το κτίριο κατοικιών αποτελεί ίσως την κυριότερη χειρονομία της παρέμβασης λόγω της κλίμακας και της αυστηρότητας του σχήματός του. Μιας και οι κατοικίες είναι προσανατολισμένες όλες προς το αίθριο, δημιουργείται μια συνθήκη κοινότητας. Η
κυκλοφορία γίνεται μέσω εξωτερικών διαδρόμων και 16 κλιμακοστασίων. Ανάμεσα στις μονάδες κατοίκισης τοποθετούνται ιδιωτικοί κήποι με οπές στις πλάκες, προσφέροντας φυσικό φωτισμό και αερισμό στους ιδιωτικούς χώρους των
υπνοδωματίων. Στο δώμα τοποθετείται περιμετρικά μεταλλική κατασκευή ως κατάληξη της ογκοπλασίας, χρησιμεύοντας και στην απόκρυψη των κλιμακοστασίων.

Αρχικά, για να βρούμε τι μέγεθος θα έχει το αίθριο του συγκροτήματος κατοίκισης, σκεφτήκαμε να το εξισώσουμε με τον κενό χώρο που υπήρχε στον καταυλισμό (32.440 τ.μ.).

Για να δούμε τι επιφάνεια θα καταλαμβάνει ο χτιστός χώρος κατοίκισης, βρήκαμε ένα επιτυχημένο παράδειγμα κοινωνικής ένταξης των Ρομά. Τελικά στο παράδειγμα του χωριού αυτού, το 25% με 30% ήταν Ρομά. Βλέποντας ότι λειτουργεί, μεταφέραμε αυτή την αναλογία και στη δική μας περίπτωση, δημιουργώντας χώρο στέγασης για 905 άτομα (257 Ρομά που υπήρχαν στον καταυλισμό και 648 κάτοικοι μη Ρομά).

Το συγκρότημα κατοίκισης τοποθετείται πίσω από το Μουσείο (πρώην Νομισματοκοπείο) ως συνέχεια του οικιστικού προγράμματος της πόλης.

Με κίνητρο την ανάδειξη της μνημειακότητας που φέρει το κτίριο του Νομισματοκοπείου, προσπαθούμε να μεταφέρουμε αυτή τη συνθήκη σε όλο το πάρκο. Το σχήμα του κτιρίου κατοίκισης γίνεται τέλειο τετράγωνο με περιμετρικές κολόνες, αναφερόμενο σε τυπολογίες αρχαίων ναών και τζαμιών.

Ως αναφορά το προαύλιο του Κάστρου των Σφόρτσα στο Μιλάνο, δημιουργούμε έναν κεντρικό πυρήνα νερού ο οποίος λειτουργεί ως πόλος έλξης, με τη δυνατότητα να φιλοξενήσει πρόγραμμα εστίασης περιμετρικά του. Η δεξαμενή νερού στο κέντρο είναι εμπνευσμένη από το ισλαμικό Qibla (σημείο συγκέντρωσης πιστών για προσευχή). Στη δική μας περίπτωση λειτουργεί ως χώρος κοινωνικοποίησης και αλληλεπίδρασης Ρομά με μη Ρομά. Γύρω από το νερό φυτεύονται ψηλόκορμα
δέντρα σε κάναβο, ενισχύοντας την ατμόσφαιρα της αιώρησης του κτιρίου, προσφέροντας παράλληλα την εμπειρία ενός περίκλειστου δάσους.

Υπάρχουν δυο τυπολογίες διαμερισμάτων, μια για τις μεγαλύτερες οικογένειες των Ρομά και μια που απευθύνεται σε τυπική ελληνική οικογένεια. Συνολικά υπάρχουν 204 διαμερίσματα, 42 για Ρομά και 162 για μη Ρομά.

Ο χώρος διημέρευσης και των δυο τυπολογιών βρίσκεται στο εμπρόσθιο τμήμα, προσλαμβάνοντας την ατμόσφαιρα που δημιουργεί το αίθριο.

Οι ιδιωτικοί χώροι είναι συγκεντρωμένοι, στη μια περίπτωση, στο πίσω μέρος του διαμερίσματος, ενώ στην άλλη καταλαμβάνουν το μισό τμήμα του, με το ένα υπνοδωμάτιο να διατηρεί οπτική επαφή με το αίθριο. Κάθε διαμέρισμα διαθέτει και εξώστη πλάτους τριών μέτρων. Οι προσόψεις επενδύονται με ενιαίες συρόμενες γυάλινες επιφάνειες, διευκολύνοντας την
επικοινωνία του μέσα-έξω.
Το κτίριο Γραφείων/Καταστημάτων ακολουθεί την πορεία της Μεσογείων, λειτουργώντας ως ένα αντίβαρο στην απέναντι υπάρχουσα εμπορική ζώνη. Στο ισόγειο βρίσκονται καταστήματα, ενώ οι δυο υπόλοιποι όροφοι φιλοξενούν χώρους γραφείων. Εννέα αίθρια το χωρίζουν σε δέκα τμήματα, οπότε φιλοξενούνται είκοσι καταστήματα και είκοσι γραφειακές μονάδες. Η εμπορική ζώνη αυτή έχει δημιουργηθεί με στόχο την εξυπηρέτηση των καθημερινών αναγκών του συγκροτήματος. Ακόμα προσφέρει θέσεις εργασίας τόσο για τον Ρομανί όσο και για τον ελληνικό πληθυσμό. Γενικότερα ενισχύει την
επισκεψιμότητα του πάρκου.
Η γραμμικότητα και μονολιθικότητα της γεωμετρίας του σχετίζεται με τον μνημειακό χαρακτήρα που οραματιζόμαστε σε ολόκληρο το πάρκο. Οι προσόψεις καθώς και τα καταστήματα στο ισόγειο επενδύονται με υαλοπίνακες με πολύ λεπτό σκελετό, δημιουργώντας μια αδιάκοπη οπτική αλληλουχία. Περιμετρικά των ισόγειων καταστημάτων υπάρχει διάδρομος κυκλοφορίας, προσφέροντας πρόσβαση στα μαγαζιά. Η πρόσβαση στα γραφεία γίνεται μέσω των κλιμακοστασίων που υπάρχουν στα αίθρια και έπειτα μέσω ενός υπέργειου διαδρόμου με θέα το πάρκο. Τα open plan καταστήματα μπορούν να υποδεχτούν από τοπικά μαγαζιά έως και παραρτήματα αλυσίδων.
Μεταξύ 2 αιθρίων βρίσκεται μια γραφειακή μονάδα co-working. Η μονάδα χωρίζεται σε 3 ζώνες: βοηθητικούς χώρους / χώρο διαλείμματος, αποθηκευτικό χώρο και open plan χώρο εργασίας. Ο χώρος εργασίας έχει οπτική επαφή με τη Λεωφόρο
Μεσογείων, ενώ ο χώρος διαλείμματος με το πάρκο. Το κτίριο κατοικιών και το κτίριο γραφείων καταστημάτων αποτελούν τις 2 κυριότερες χειρονομίες της πρότασης.
Το Ίδρυμα Εκτυπώσεως Τραπεζογραμματίων και Αξιών (ΙΕΤΑ) ή αλλιώς Νομισματοκοπείο προτείνουμε να μετατραπεί σε μουσείο. Το μουσείο θα ενισχύσει ακόμα περισσότερο την πολιτισμική ενότητα των δυο λαών και θα λειτουργήσει και αυτό ως σύμβολο προόδου και υπέρβασης των διακρίσεων μεταξύ των δυο πολιτισμών. Η θεματική του μουσείου πιστεύουμε ότι έχει νόημα να σχετίζεται και με τις δυο κοινωνικές ομάδες, οπότε θα μπορούσε να έχει τον τίτλο: Λαογραφικό Μουσείο Ρομανί και Ελληνικής Κληρονομιάς. Σεβόμενοι την αρχική δομή του κάνουμε ελάχιστες εξωτερικές παρεμβάσεις. Η είσοδος στο μουσείο γίνεται μέσω μιας μεγαλοπρεπούς διαδρομής, ανάλογης των αριστοκρατικών εισόδων των παλατιών, που συνδέεται χωρικά και οπτικά με τη Μεσογείων.
Ανάμεσα στο προσχολικό ίδρυμα και στο κτίριο γραφείων ΑΡΚΑΤ, βρίσκεται η Πλατεία Ενότητας. Μέσω μια ήπιας κλίσης συνδέουμε την οδό Σαρανταπόρου με τη Μεσογείων, προσκαλώντας επισκέπτες και από την πλευρά του Χαλανδρίου. Μέσω
αυτής της κινησης συνδέουμε Χαλάνδρι, Αγία Παρασκευή και Χολαργό. Εκεί τοποθετείται ένα τοπόσημο ως σύμβολο ενότητας, στο σημείο του πρώην καταυλισμού.
Εμπνεόμενοι από τη στοά του Ναού του Λούξορ δημιουργούμε μια επιστήλια στοά συνδέοντας το κτίριο κατοικιών με το κτίριο γραφείων/καταστημάτων. Χωροθετικά προκύπτει από την επέκταση του νοτιοανατολικού τμήματος του κτιρίου κατοικιών. Η κίνηση διευκολύνει την άμεση επικοινωνία μεταξύ των δυο προγραμμάτων.
Κατά μήκος της Λευκωσίας, αναπτύσσεται μια ζώνη καλλιεργειών-allotments. Ανάμεσα στο κτίριο κατοίκισης και στο προσχολικό ίδρυμα οργανώνουμε τρεις χώρους απασχόλησης των μαθητών και παιδιών που κατοικούν στο συγκρότημα.
Ως οπτική επέκταση του υπάρχοντος κτιρίου γραφείων της ΑΡΚΑΤ δημιουργούμε μια αθλητική ζώνη που εκτείνεται μέχρι τη Σαρανταπόρου.
Project title: Intersection of Unity
Typology: Diploma Thesis Project
Academic semester: February of 2025
Student: George Genovezos, Lam Faraj
Supervisor: Demetra Katsota
Institution: Department of Architecture, University of Patras
Text: George Genovezos, Lam Faraj
Nowadays, certain social groups face exclusion. One of these is the Roma community. With the initial aim of limiting this phenomenon, we considered that architecture could contribute to this effort. Having studied their lifestyle and poor living conditions, we decided to proceed with an intervention focused on improving their living standards.
One of the oldest Roma settlements in Attica is located near the Nomismatokopeio (Mint) in Chalandri. Despite being at the intersection of three municipalities, social exclusion is evident. The site, which includes the settlement, appears to be a significant urban void in Attica. Given these circumstances, we decided to engage in the design of a park that brings together both cultures.
The "Intersection of Unity" is conceived as a park for social interaction between different cultures, as well as a cultural and economic hub at the junction of Chalandri, Cholargos, and Agia Paraskevi.
Observing the current situation of the site, we identified the Nomismatokopeio building as one of the most important elements of the study area. Its monumental nature and large scale are defining features. We wanted to transfer these conditions into our intervention, as we believe that this moment of cultural unity is fundamental. Specifically, we adopted the large scale and strict geometric organization.
Through the program, which includes residential spaces, dining areas, a museum, and Square of Unity, we encourage social interaction. Initially, the residential building, along with the atrium, create a community of Roma and non-Roma residents, combining daily living and gatherings in the central dining space. Shops, gardens, and the sports complex also contribute to their socialization.
The main circulation routes of the park consist of the central stoa, which connects the residential building with the shops, and the pathway along Mesogeion Avenue.
The proposal aims to become a landmark that symbolizes the harmonious coexistence of the two communities - a movement representing a step forward in the evolution of humanity.
Archetype team - 07/11/2025
Ηρώ Καραβία - 05/11/2025
Αλαμανιώτη Πέτρα, Ζέκα Βασιλεία, Ντάλλη Χριστίνα - 03/11/2025
ΟΛΑ ΤΑ ΤΕΥΧΗ
SUBSCRIBE
Μπορείς να καταχωρήσεις το έργο σου με έναν από τους τρεις παρακάτω τρόπους: