ΕΓΓΡΑΨΟΥ
για να λαμβάνεις τα νέα του Archetype στο email σου!
Thank you!
You have successfully joined our subscriber list.
Φοιτήτρια: Πελαγία Κάκκα
Επιβλέπων καθηγητής: Σταύρος Δενδρινός
Μέλη τριμελούς επιτροπής: Αναστασία Καπανδρίτη, Ειρήνη Τσετινέ
Έτος παρουσίασης: Ιούλιος 2025
Πανεπιστήμιο: Δημοκρίτειο Πανεπιστήμιο Θράκης, Τμήμα Αρχιτεκτόνων Μηχανικών
Η διπλωματική εργασία αφορά την επανάχρηση του βιομηχανικού συγκροτήματος των μύλων Αλλατίνη. Η επιλογή του θέματος προέκυψε μέσα από προσωπικά βιώματα και εμπειρίες που κίνησαν το ενδιαφέρον μου για τη μελέτη του ιστορικού συγκροτήματος.

Η περιοχή μελέτης βρίσκεται στην ανατολική Θεσσαλονίκη, στην περιοχή Ντεπώ, αρκετά κοντά στο Μέγαρο Μουσικής Θεσσαλονίκης και στην αρχή της νέας παραλίας. Πρόκειται για μια γειτονιά που φιλοξενεί αρκετά ιστορικά κτίσματα, από τη συνοικία των εξοχών, πολιτιστικά κέντρα, σχολεία και χώρους πρασίνου.

Η αρχιτεκτονική σύνθεση είχε ως αφετηρία την επανάχρηση του υφιστάμενου κελύφους, ώστε να αναδειχθεί η πολιτισμική του ταυτότητα, αλλά και τον σχηματισμό μιας κοινότητας που θα μπορεί να οικειοποιηθεί τον χώρο.

Η δημιουργία ενός κέντρου τέχνης με συλλογική κατοίκηση καλλιτεχνών στο πρώην βιομηχανικό συγκρότημα των μύλων Αλλατίνη έχει ως στόχο τη διαμόρφωση ενός τόπου συνύπαρξης, συνεργασίας και έκφρασης, δημιουργώντας έναν προσβάσιμο και ζωντανό χώρο πολιτισμού. Παράλληλα, αναδεικνύει την αρχιτεκτονική της εποχής και συνδέει το παρελθόν με το παρόν μέσω της καλλιτεχνικής έκφρασης.
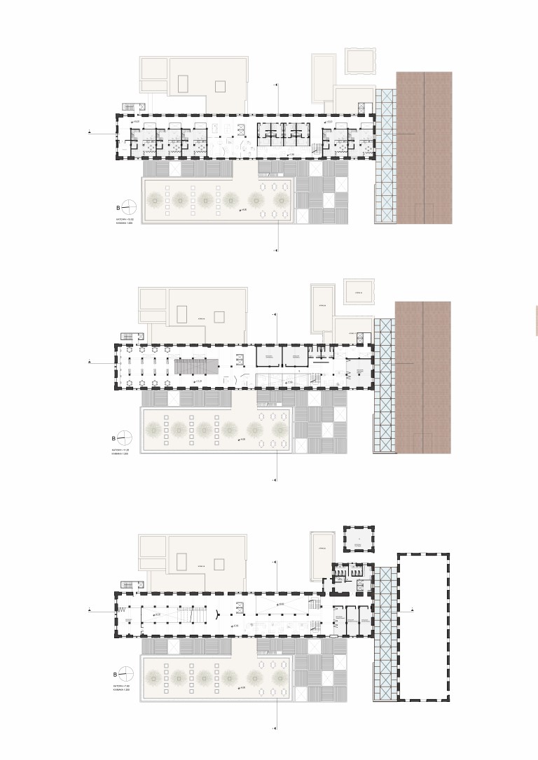
Η κεντρική είσοδος του οικοπέδου γίνεται από την ανατολική πλευρά του, επί της οδού Παπανδρέου. Λόγω των υψομετρικών διαφορών στα επίπεδα του οικοπέδου, δημιουργήθηκε μια πορεία που οδηγεί τον επισκέπτη στο επίπεδο ±0.00, όπου υπάρχει και η κεντρική είσοδος για το κτίριο. Μπροστά από την ανατολική όψη του κτιρίου τοποθετήθηκε μια γέφυρα που ενώνει τα δύο επίπεδα +2.5, ώστε να επιτυγχάνεται μια ενιαία κυκλική και συνεχόμενη πορεία εξωτερικά του κτιρίου με σκοπό την περιπλάνηση του επισκέπτη χωρίς να χρειαστεί να μπει εντός του κτίσματος, απλά για να θαυμάσει τις ιστορικές όψεις. Βασικό κομμάτι του αστικού σχεδιασμού είναι η ενίσχυση των χώρων πρασίνου και η επαναφορά του υδάτινου στοιχείου κοντά στο συγκρότημα. Επιπλέον έχει δημιουργηθεί και χώρος στάθμευσης οχημάτων κοντά στον δρόμο για λόγους πρόσβασης.


Εσωτερικά του κτιρίου, η κύρια είσοδος βρίσκεται στην ανατολική όψη στο επίπεδο του ισογείου, όμως υπάρχουν διάφορα σημεία πρόσβασης στο κτίριο, που εξυπηρετούν και την πυρασφάλειά του. Η έλλειψη μπαλκονιών αποτέλεσε βασικό προβληματισμό που οδήγησε στη δημιουργία εσωτερικών κενών και εσωτερικών αίθριων, με σκοπό την οπτική σύνδεση μεταξύ των ορόφων αλλά και την αίσθηση ενός πιο «ανοιχτού» χώρου. Στα δύο πρώτα πατώματα εκτείνονται οι περιοδικές εκθέσεις, στο τρίτο και τέταρτο τα εργαστήρια δημιουργίας, η βιβλιοθήκη-αναγνωστήριο, το αμφιθέατρο και κοινόχρηστοι χώροι. Τέλος, στο πέμπτο και έκτο πάτωμα υπάρχει η συλλογική κατοίκηση καλλιτεχνών.



Οι προσθήκες που έγιναν στο κτίριο 15 είναι κυρίως μεταλλικές αυτοφερόμενες κατασκευές που μπορούν ανά πάσα στιγμή να αφαιρεθούν από το κτίσμα χωρίς να αφήσουν αποτύπωμα. Η κεντρική είσοδος έχει δημιουργηθεί σε σημείο της όψης που λόγω της προηγούμενης μορφολογίας του εδάφους δεν ήταν εμφανής, ωστόσο, προκειμένου να στηριχθούν οι τόνοι λιθοδομής της τοιχοποιίας του κτιρίου για να γίνει το άνοιγμα της εισόδου, έγινε μελέτη για τη δημιουργία μεταλλικού σκελετού. Στο δώμα του κτιρίου τοποθετήθηκαν κλωστρά από τούβλο με σκοπό την επαναφορά της αίσθησης του σχεδίου του 1900 από τον Ιταλό αρχιτέκτονα Vitaliano Poseli. Ενδιάμεσα των κλωστρά τοποθετήθηκαν κινητές όψεις από διάτρητο κορτέν. Με αυτό τον τρόπο διαφυλάσσεται η ιδιωτικότητα των κατοίκων, χωρίς να περιορίζει τη θέα προς τον Θερμαϊκό κόλπο και την οδό Παπανδρέου.


Συνοψίζοντας, ο σχεδιασμός αποσκοπεί στη διατήρηση και αποκατάσταση της βιομηχανικής κληρονομιάς σε συνδυασμό με τις σύγχρονες αρχιτεκτονικές ανάγκες ενός κέντρου τέχνης με συλλογική κατοίκηση καλλιτεχνών.


Adaptive reuse of the industrial complex of the Allatini mills, with artist Co-living
This diploma thesis is about the adaptive reuse of the industrial complex of the Allatini mills. The choice of the subject came from personal experiences that sparked my intertest to study the historical complex.
The study area is located in eastern Thessaloniki, in the area of Depo, close to the Thessaloniki concert hall and the beginning of the New Waterfront. This is a neighborhood that hosts several historic buildings, cultural centers, schools and green spaces.
The architectural composition was based on the reuse of the existing shell, in order to highlight its cultural identity and foster the formation of an artistic community that can meaningfully inhabit and appropriate the space.
The creation of an art center with an artist co-living community in the abandoned factory of the Allatini mills aims in shaping a space for coexistence, collaboration and artistic expression by creating an accessible and vivid cultural space. At the same time, it highlights the architecture of the era and it connects the past with the present through artistic practices.
The main entrance to the site is located on its eastern side, along Papandreou street. Due to the variations in ground levels, a pathway was created that leads visitors to level ±0.00, where the main entrance of the building is also situated. In front of the eastern facade of the main building (15), a bridge was placed to connect the two +2.5 levels, ensuring a continuous circular route around the exterior of the building. This allows visitors to wander in the landscape and admire the historic facades without necessarily entering the structure. A key aspect of the urban design is the enhancement of green spaces and the reintroduction of the water element near the complex. In addition, a parking area has been created near the street for accessibility purposes.
Within the building, the primary entrance is positioned on the eastern façade at ground floor level, while multiple additional access points ensure both functional circulation and compliance with fire safety regulations. The absence of balconies emerged as a design challenge, which was addressed through the incorporation of internal voids and atria, fostering vertical visual connections between floors and reinforcing the perception of openness. The first two levels are allocated to temporary exhibition areas, whereas the third and fourth levels accommodate creative studios, a library and reading room, an auditorium and communal facilities. The fifth and sixth levels are designated for collective residential units intended for artists.
The additions made to building 15 consist mainly of self-supporting metal structures that can be removed at any time without leaving a permanent trace on the existing fabric. The main entrance was created at a point on the facade that, due to the site’s topography, was not previously visible. In order to support the massive stone masonry of the building’s wall and enable the opening of the entrance, a detailed study was carried out for the integration of a steel frame. On the rooftop, brick claustra were installed, reintroducing the architectural character of the original 1900 design by the Italian Architect Vitaliano Poselli. Between the claustra, movable facades of perforated corten steel were placed. In this way, residents’ privacy is preserved without obstructing views toward the Thermaikos Gulf and Papandreou street.
In summary, the design carefully balances heritage preservation with contemporary architectural needs for an art center with an artist co-living community.
Χριστίνα Ιωακειμίδου - 26/05/2026
Κωνσταντίνα-Αταλάντη Πρασούλα - 25/05/2026
Archetype team - 25/05/2026
ΟΛΑ ΤΑ ΤΕΥΧΗ
SUBSCRIBE
Μπορείς να καταχωρήσεις το έργο σου με έναν από τους τρεις παρακάτω τρόπους: