
ΕΓΓΡΑΨΟΥ
για να λαμβάνεις τα νέα του Archetype στο email σου!
Thank you!
You have successfully joined our subscriber list.
για να λαμβάνεις τα νέα του Archetype στο email σου!
You have successfully joined our subscriber list.
ΠΕΡΙΟΧΗ:
χανιά, Ελλάδα
ΠΕΡΙΟΔΟΣ ΜΕΛΕΤΗΣ:
Ιανουάριος 2023 - Μάιος 2023
ΟΛΟΚΛΗΡΩΣΗ ΕΡΓΟΥ:
Μάιος 2024
Project title: Albero villa in Crete, Greece
Architectural Office: Nōema Studio
Location: Βλητές, Σούδα, Χανιά (Ελλάδα)
Area: 285.00 τ.μ.
Επικεφαλής αρχιτέκτονας: Χρήστος Αναστασάκης
Συνεργάτης αρχιτέκτονας: Τόνια Κορακάκη
Interior Design Team: Χρήστος Αναστασάκης, Τόνια Κορακάκη
Civil engineer: Ιωάννης Βόρδος
Mechanical engineer: Αρτέμιος Κουμαδοράκης
Photography: Γιώργος Αναστασάκης [southspace for photography]
To Nōema Studio ανέλαβε το σχεδιασμό της Albero villa, στα Χανιά, με σκοπό τη δημιουργία μιας βίλας που θα εστιάζει στην ανάπτυξη μιας έντονης ψυχοσωματικής εμπειρίας στον επισκέπτη, ικανής να δημιουργήσει ισχυρές εμπειρίες από την διαμονή του στο κατάλυμα. Για να επιτευχθεί αυτό δόθηκε μείζονος σημασία στην ανάδειξη της καθηλωτικής θέας του οικοπέδου στο λιμάνι της Σούδας, στην επαφή με τη φύση μέσω της δημιουργίας ενός αιθρίου εσωτερικά του κτιρίου, στο συνδυασμό των υφών και στην επιλογή φυσικών υλικών, στην διαμόρφωση ιδιαίτερων χώρων εκτόνωσης και τέλος στην κατάργηση των νοητών ορίων του εσωτερικού με τον εξωτερικό χώρο.
Χρησιμοποιήθηκαν μεγάλα ανοίγματα που επιτρέπουν το φυσικό ηλιασμό και φωτισμό του χώρου τις περισσότερες ώρες της μέρας και δημιουργούν ιδιαίτερα σημεία θέασης τόσο από τους χώρους διημέρευσης όσο και από τους χώρους διανυκτέρευσης των υπνοδωματίων. Στους κοινόχρηστους ισόγειους χώρους υπάρχει η δυνατότητα ενοποίησης της σαλονοτραπεζαρίας με τον εξωτερικό χώρο της πισίνας, στην προέκταση του οποίου έχει σχηματιστεί ένα υπαίθριο υποβιβασμένο καθιστικό με πλήρη ιδιωτικότητα.
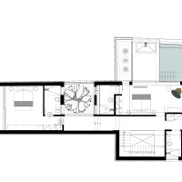
Το κατάλυμα αποτελείται από πέντε ensuite υπνοδωμάτια, δύο κοινόχρηστα wc, το εσωτερικό αίθριο, τον χώρο της πισίνας με το bbq & το εξωτερικό καθιστικό, έναν ενιαίο χώρο σαλονιού - κουζίνας, καθώς και τον υπόγειο χώρο με βοηθητικές χρήσεις γυμναστηρίου, spa και home cinema. Συνολικά καταλαμβάνει 4 επίπεδα (υπόγειο, ισόγειο, όροφος, σοφίτα) και απαρτίζεται από 244 τ.μ. Εκτείνεται σε ένα στενομέτωπο οικόπεδο μόλις 285 τ.μ., με έντονη υψομετρική διαφορά 5 μέτρων και μέγιστου πλάτους από μόλις 5.20 έως 11.80 μέτρα. Το γεγονός αυτό προκάλεσε μία σχεδιαστική πρόκληση και αποτέλεσε την αρχή για την ανάπτυξη μιας γραμμικής ογκοπλασίας προσαρμοσμένης στις απαιτήσεις και κλίσεις του φυσικού εδάφους.
Στην πλευρά της εισόδου ένας πέτρινος όγκος οδηγεί τον επισκέπτη, που σταδιακά βυθίζεται κατά την κάθοδο του από το εξωτερικό κλιμακοστάσιο προς την κεντρική πύλη της οικίας. Ο όγκος αυτός συνεχίζεται και στο εσωτερικό της οικίας κατευθύνοντάς τον στο αίθριο και εν συνεχεία στον κοινόχρηστo χώρο του ισογείου, από όπου μπορεί να συνεχίσει την πορεία του στον εξωτερικό χώρο συνάθροισης με την πισίνα. Αφού παρατηρήσει τη θέα, μπορεί να αντιληφθεί τον κτιριακό όγκο που εκτείνεται από πάνω του δημιουργώντας μία σύγχρονη όψη. Στη διαμόρφωση της όψης έχει συμβάλλει και ένα μεταλλικός εξώστης που αιωρείται εξωτερικά του επιπέδου της σοφίτας. Η πλειοψηφία των υπνοδωματίων βρίσκονται στο επίπεδο του ορόφου και της σοφίτας, αποδίδοντας τους κατά αυτόν τον τρόπο παραπάνω ιδιωτικότητα, ενώ όπως προαναφέρθηκε οι ψυχαγωγικές δραστηριότητες εκτείνονται στο υπόγειο.
Η διακόσμηση ακολουθεί την αισθητική της αρχιτεκτονικής, αποδίδοντας στον χώρο μία αίσθηση οικείου, ήρεμου και φιλόξενου περιβάλλοντος. Γήϊνοι τόνοι, φυσικά υλικά, όπως πέτρα και ξύλο, ανάφλυφες υφές και τεχνοτροπίες έχουν συνδυαστεί εντέχνως για να επιτευχθεί η απόλυτη αισθητική αρμονία. Όσον αφορά τη φύτευση, επιλέχθηκαν αγρωστώδη φυτά συμβατά με την βιοποικιλότητα και το κλίμα του τόπου μας.
_________________________________________________________________________________________________
Project title: Albero villa in Crete, Greece
Architectural Office: Nōema Studio
Location: Vlites, Souda, Chania Greece
Area: 285.00 sq.m.
Lead Architect: Christos Anastasakis,
Associate Architect: Tonia Korakaki
Interior Design Team: Christos Anastasakis, Tonia Korakaki
Civil engineer: Ioannis Vordos
Mechanical engineer: Artemios Koumadorakis
Photography: George Anastasakis [southspace for photography]
Noema Studio undertook the design of Albero Villa in Chania, aiming to create a villa that focuses on developing an intense psychosomatic experience, for the visitors, capable of generating powerful memories from their stay. To achieve this, major emphasis was placed on showcasing the captivating view of the plot (towards the Souda Bay), on connecting with nature through the creation of an atrium within the building, on picking up earthy textures & natural materials, on designing unique relaxation spaces, and on ultimately eliminating the conceptual boundaries between the interior and exterior spaces.
Large openings were used to allow natural sunlight to illuminate the space for most of the day and to create unique viewing points both from the living area and the bedrooms. In the common ground floor spaces, there is the possibility of unifying the living-dining area with the outdoor pool area, where an outdoor sunken seating area with complete privacy has been formed.
The villa consists of five ensuite bedrooms, two shared bathrooms, an olive tree atrium, a pool area with BBQ and outdoor seating, an open-plan living room & kitchen area, as well as a basement with auxiliary uses for a gym, spa, and home cinema. In total, it consists of four levels (basement, ground floor, first floor, attic) and covers 244 square meters. It extends on a narrow "T" shaped plot of just 285 square meters, with a significant elevation difference of five meters and a maximum width ranging from just 5.20 meters to 11.80 meters. The concept for this challenging plot was to create a linear volumetric form adapted to the terrain's requirements and slopes.
On the entrance side, a stone mass guides the visitor, who gradually descends from the external staircase to the main gate of the house. This mass continues into the interior of the house, leading them to the atrium as well as the common ground floor area, from where they can continue to the outdoor gathering space with the pool. After taking in the view, the visitor can perceive the building mass that extends above, creating a contemporary facade. The facade design is further enhanced by a metal balcony that hovers outside the attic level. The majority of the bedrooms are located on the first floor and the attic providing greater privacy, while the recreational activities are situated in the basement, as mentioned above.
The interior design follows the architectural aesthetic, giving the space a sense of a familiar, calm, and welcoming environment. Earthy tones, natural materials such as stone and wood, textured surfaces, and artistic techniques have been skillfully combined to achieve perfect aesthetic harmony. As for the landscaping, there were selected grass plants compatible with the region’s biodiversity and climate.
Companies/ brands: Ferm living, 101 Copenhagen, Bloomingville, Pols Potten, S-cab, Ng Design, House Doctor, Houe, Eichholtz, Affari of Sweden, Broste Copenhagen, Cifre Cerámica, Zaira collection, Adamo textured handmade art
Μπορείς να καταχωρήσεις το έργο σου με έναν από τους τρεις παρακάτω τρόπους: