ΕΓΓΡΑΨΟΥ
για να λαμβάνεις τα νέα του Archetype στο email σου!
Thank you!
You have successfully joined our subscriber list.
για να λαμβάνεις τα νέα του Archetype στο email σου!
You have successfully joined our subscriber list.
Uploaded by: Archetype Editor
ΠΕΡΙΟΧΗ:
Μανδριά, Πάφος, Κύπρος
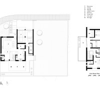
Χωροθετημένο σε μισό γωνιακό οικόπεδο στα ανατολικά της επαρχίας Πάφου, το κτίσμα ενσωματώνει τη γεωμετρική αρμονία και την έννοια της ισορροπίας μέσα από καθαρές, λιτές συνθετικές γραμμές. Τρεις πρισματικοί όγκοι, οργανωμένοι σε οριζόντια και κατακόρυφη διάταξη, αλληλοσυμπληρώνονται, μέσα από την αντίθεση και τη συνοχή. Αυτή η σύνθεση διαχωρίζει διακριτά τις βασικές χρηστικές λειτουργίες της κατοικίας, ενώ δημιουργεί μια δυναμική συνομιλία μεταξύ γεωμετρίας και λειτουργικότητας.
Η αρχιτεκτονική σύνθεση προκύπτει από την αλληλεπίδραση των όγκων, οι οποίοι διαμορφώνουν κενά και πλήρη, καθορίζοντας τόσο τις ροές κίνησης όσο και τη σχέση των εσωτερικών με τους εξωτερικούς χώρους. Ο κύριος χώρος διημέρευσης της κατοικίας αναπτύσσεται στον άξονα Βορρά-Νότου στο ισόγειο, ενώ ορίζεται από τη διαφάνεια και τη ρευστότητα των κινήσεων. Το μεγάλο υαλοστάσιο προς τον Νότο επιτρέπει στο φυσικό φως να διαπερνά τον χώρο, ενώ παράλληλα ενοποιεί το εσωτερικό με τη βεράντα και τον κήπο.
Η ανοιχτή διάταξη φιλοξενεί το καθιστικό, την τραπεζαρία, την κουζίνα και ένα βοηθητικό δωμάτιο, δημιουργώντας ένα ζωντανό και ευέλικτο περιβάλλον. Ο όγκος αυτός συνδέεται οργανικά με τον καλυμμένο χώρο στάθμευσης και την αποθήκη, επεκτείνοντας τη λειτουργικότητα και ενισχύοντας τη χρηστικότητα.
Σε αντίθεση με την εξωστρέφεια του ισογείου, ο όγκος του 1ου ορόφου λειτουργεί ως μια ήρεμη και προστατευμένη ζώνη, αφιερωμένη στις ιδιωτικές χρήσεις. Το μακρόστενο, ορθογώνιο πρίσμα, τοποθετημένο κεντροβαρικά του ισογείου, ενισχύει την αρχιτεκτονική ισορροπία, ενώ τα ελεγχόμενα ανοίγματά του σε ανατολή και δύση διαμορφώνουν έναν προστατευμένο, εσωστρεφή χαρακτήρα. Εδώ φιλοξενούνται τα τρία υπνοδωμάτια και το γραφείο, προσφέροντας μια αίσθηση απομόνωσης και γαλήνης.
Η σύνδεση των δύο επιπέδων πραγματοποιείται μέσω μιας καμπυλόμορφης χαλύβδινης σκάλας, η οποία αναδεικνύεται ως κεντρικό αρχιτεκτονικό στοιχείο. Σε αντίθεση με την αυστηρότητα των πρισμάτων, η καμπύλη της μορφή προσφέρει μια οργανική συνέχεια μέσα στον χώρο, ελκύοντας το βλέμμα και καθοδηγώντας την κίνηση.
Η σκάλα μοιάζει να αιωρείται, ενισχύοντας την αίσθηση της οπτικής ελάφρυνσης, ενώ η συνύπαρξη ξύλου και μετάλλου προσδίδει μια ισορροπημένη αντίθεση μεταξύ φυσικότητας και σύγχρονης μινιμαλιστικής έκφρασης. Δεν πρόκειται απλώς για ένα λειτουργικό στοιχείο σύνδεσης, αλλά για μια γλυπτική παρέμβαση που επηρεάζει την αντίληψη του χώρου και την εμπειρία του χρήστη.
Η κατοικία εκφράζει μια σύγχρονη ερμηνεία της μεσογειακής αρχιτεκτονικής, αξιοποιώντας τοπικά υλικά με έναν σύγχρονο, αφαιρετικό τρόπο. Η πέτρα, το ξύλο, το γυαλί και η λευκή επιφάνεια συνδιαλέγονται, δημιουργώντας μια παλέτα υλικότητας που δένει αρμονικά με το φυσικό τοπίο.
Το φως και η σκιά λειτουργούν ως ζωντανά στοιχεία της σύνθεσης, μεταβάλλοντας την ατμόσφαιρα των χώρων κατά τη διάρκεια της ημέρας. Οι σκιές που ρίχνουν τα γεωμετρικά στοιχεία της κατασκευής ενισχύουν τη δυναμική της μορφολογίας, ενώ οι αντανακλάσεις στις γυάλινες επιφάνειες δημιουργούν έναν αδιάκοπο διάλογο μεταξύ εσωτερικού και εξωτερικού.
Η κατοικία τελικά δεν είναι απλώς ένα κτίσμα, αλλά γίνεται ένας καμβάς που επαναπροσδιορίζει την καθημερινή εμπειρία διαβίωσης. Μέσα από τη γεωμετρική καθαρότητα, τη λειτουργική σαφήνεια και τη στρατηγική χρήση του φωτός, η κατοικία δημιουργεί ένα περιβάλλον που εξελίσσεται μαζί με τους κατοίκους της, προσφέροντας μια αίσθηση συνέχειας, ηρεμίας και διαχρονικότητας.

Αρχιτεκτονική: AYK Architects
Φωτογράφιση: Creative Photo Room
Situated on a half-corner plot in eastern Paphos, this residence is designed to strike a balance between geometry, functionality, and light. Three prismatic volumes intersect horizontally and vertically, creating a dynamic composition where voids and solids define circulation and the relationship between interior and exterior.
The ground-floor volume, aligned along the north-south axis, houses communal areas – living room, dining area, kitchen, and a utility room. Expansive glass surfaces to the south allow natural light to penetrate deeply, blurring indoor-outdoor boundaries while seamlessly connecting the space with the veranda and garden. This volume is organically linked to the covered parking area and storage room, enhancing functionality and usability.
In contrast, the elongated first-floor volume serves as a tranquil, protected retreat. Centrally positioned, it reinforces the building’s symmetry while offering privacy. This level accommodates three bedrooms, a shared bathroom, a laundry room, and an office space.
A sculptural curved metal staircase connects the two levels, introducing an organic element that contrasts with the strict geometry of the volumes, visually lightening the space.
The residence embodies a contemporary interpretation of Mediterranean architecture, utilizing regional materials in a refined manner. Kavala stone, solid wood, white plastered surfaces, and glass form a palette that harmonizes with the natural surroundings.
Light and shadow play a crucial role in the composition, constantly transforming the atmosphere. Geometric elements cast dynamic shadows, while glass reflections create an ongoing dialogue between interior and exterior spaces.
Ultimately, the house becomes a canvas that redefines everyday living, evolving with its inhabitants to offer continuity, tranquility, and timelessness.
Architecture: AYK Architects
Photography: Creative Photo Room
Design Team: Andreas Y. Kyriakou, Stella Makri
Structural Engineer: Lab γ – Advanced Structural Engineering
Mechanical Engineer: Costas Petrides
Electrical Engineer: Kornilios Plouti
Quantity Surveyor: Nikolas Lambrou
Main Contractor: ERGOPRO Ltd
Completion: 2024
Μπορείς να καταχωρήσεις το έργο σου με έναν από τους τρεις παρακάτω τρόπους: