ΠΕΡΙΟΧΗ:
Kolonaki, Athens, Ελλάδα
ΟΛΟΚΛΗΡΩΣΗ ΕΡΓΟΥ:
Μάρτιος 2024
Το γραφείο βρίσκεται στο ισόγειο μιας αθηναϊκής πολυκατοικίας του 1960, που λειτουργούσε για χρόνια ως ιχθυοπωλείο. Ο βασικός στόχος του αρχιτεκτονικού σχεδιασμού ήταν η βέλτιστη αξιοποίηση του περιορισμένου χώρου (30τμ), ο οποίος είχε αλλοιωθεί σημαντικά λόγω μη ποιοτικών ανακαινίσεων και είχε μείνει εγκαταλελειμμένος για αρκετό διάστημα. Η ύπαρξη τριών επιπέδων (υπόγειο, ισόγειο, πατάρι) διατηρήθηκε, προσφέροντας διαφορετικές λειτουργικές περιοχές και καλύπτοντας όλες τις ανάγκες ενός νέου αρχιτεκτονικού γραφείου.
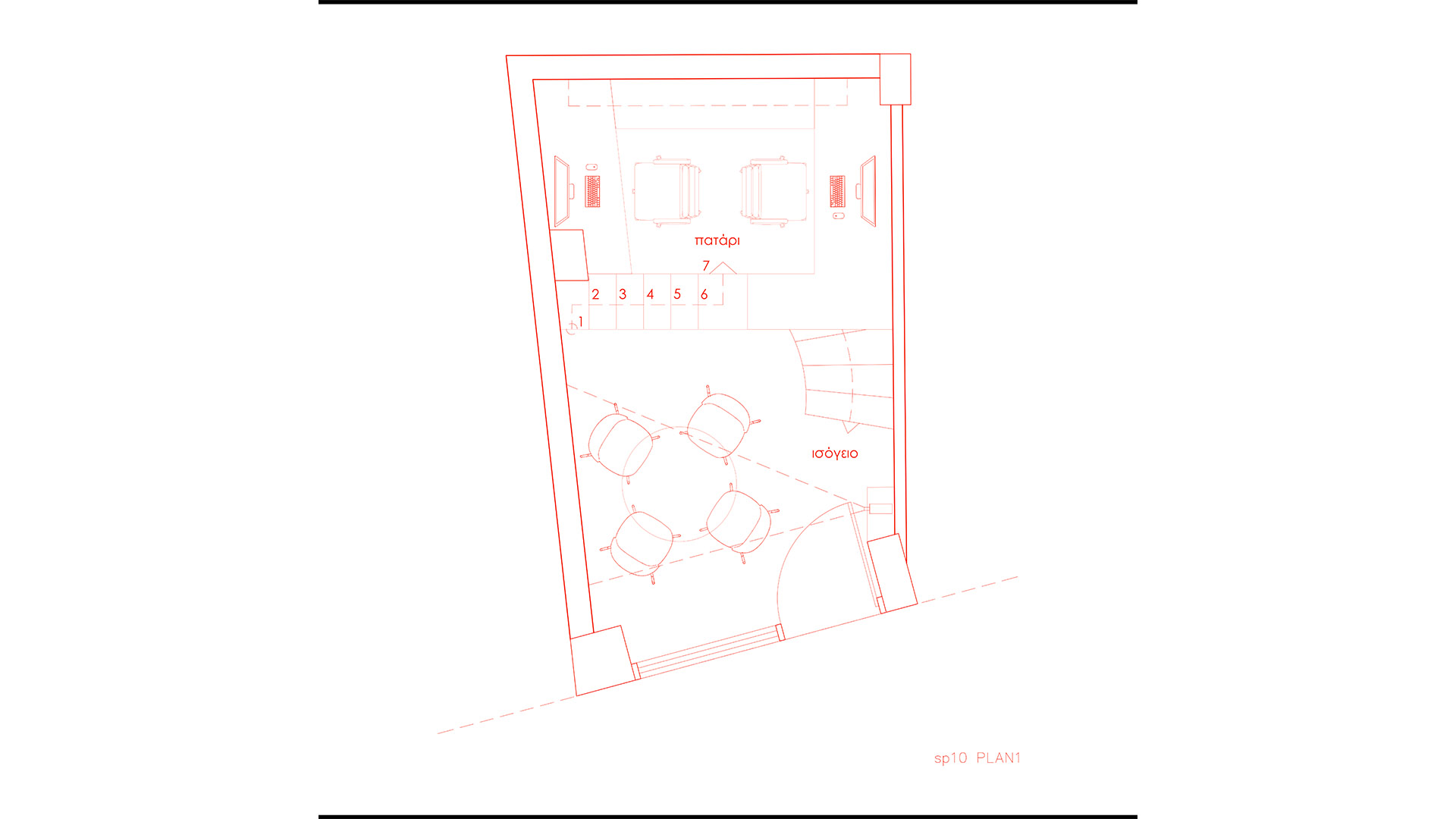
Στο ισόγειο-κατώφλι τοποθετείται ένα μπλε στρογγυλό τραπέζι από κόντρα πλακέ, του οποίου το χρώμα και το σχήμα ενθαρρύνει τη συζήτηση και το brainstorming. Στο πατάρι, οι περιμετρικοί πάγκοι από το ίδιο ξύλο χρησιμοποιούνται ως χώρος εργασίας, ενθαρρύνοντας την ιδιωτικότητα αλλά και την άμεση επικοινωνία μεταξύ των χρηστών.
Στο υπόγειο, διαμορφώνεται μια σύνθεση με αναφορά στην τυπολογία της κουζίνας που εξυπηρετεί ανάγκες προετοιμασίας ενός απλού γεύματος και εκτύπωσης. Πράσινη πατητή τσιμεντοκονία σηματοδοτεί τον χώρο και δίνει την αίσθηση κουζίνας. Η ανατροπή στον σχεδιασμό έρχεται στον τελευταίο χώρο της αλληλουχίας, στο κόκκινο WC με την πατητή τσιμεντοκονία στους τοίχους και το ροζ μωσαϊκό στο δάπεδο. Η επιλογή των χρωμάτων και υλικών στον χώρο ήταν μια αναφορά στο «απρόσμενο», που προσπαθεί να εντάσσει γενικότερα η αρχιτεκτονική ομάδα στον σχεδιασμό της.
Τέλος, στοιχείο ενοποίησης του χώρου αποτέλεσε το δάπεδο, στο οποίο εφαρμόστηκε γκρι πατητή τσιμεντοκονία, ενώ η πρόσβαση στο πατάρι γίνεται μέσω μιας μεταλλικής σκάλας ως κομμάτι σύνθεσης με κόντρα πλακέ και αποθηκευτικό χώρο. Στον χώρο κυριαρχεί το λευκό χρώμα στους τοίχους ενισχύοντας τη φωτεινότητα, ενώ παράλληλα δημιουργεί μια ατμόσφαιρα οικειότητας και ευεξίας για τους χρήστες του γραφείου.
Ο σχεδιασμός αντιμετωπίζει τον γραφειακό χώρο με μια πιο ελεύθερη προσέγγιση, αφού συνηθισμένη γραφειακή τυπολογία δεν θα λειτουργούσε το ίδιο αποτελεσματικά στον συγκεκριμένο χώρο. Τα σύγχρονα δεδομένα στην πράξη της αρχιτεκτονικής ενσωματώνονται και πραγματώνονται στις ανάγκες του νέου αρχιτεκτονικού γραφείου.

Αρχιτέκτονες: Spatial Architecture + Design
Μάρω Κρούσκα, Βασιλίνα Καούρη
Φωτογραφίες: Μυρτώ Τζίμα
















































για να λαμβάνεις τα νέα του Archetype στο email σου!
You have successfully joined our subscriber list.
Μπορείς να καταχωρήσεις το έργο σου με έναν από τους τρεις παρακάτω τρόπους: